經驗豐富
昏暗的光線、老舊的設施、雜亂的物品堆放、狹小的衛生間……這些都是老房子亟待解決的問題。因此,屋主毅然決定進行全面的翻新改造,以期用全新的面貌來迎接更加高品質的生活。
簡潔、時尚、耐看、通透,是屋主對新居的首要期待。經過深入交流,我們迅速在設計理念上達成一致,決定以隨性自然的黑白灰作為主色調,對空間布局進行精心重組,旨在擴大生活區域,讓自由無拘的氣息充盈于整個居家空間之中。


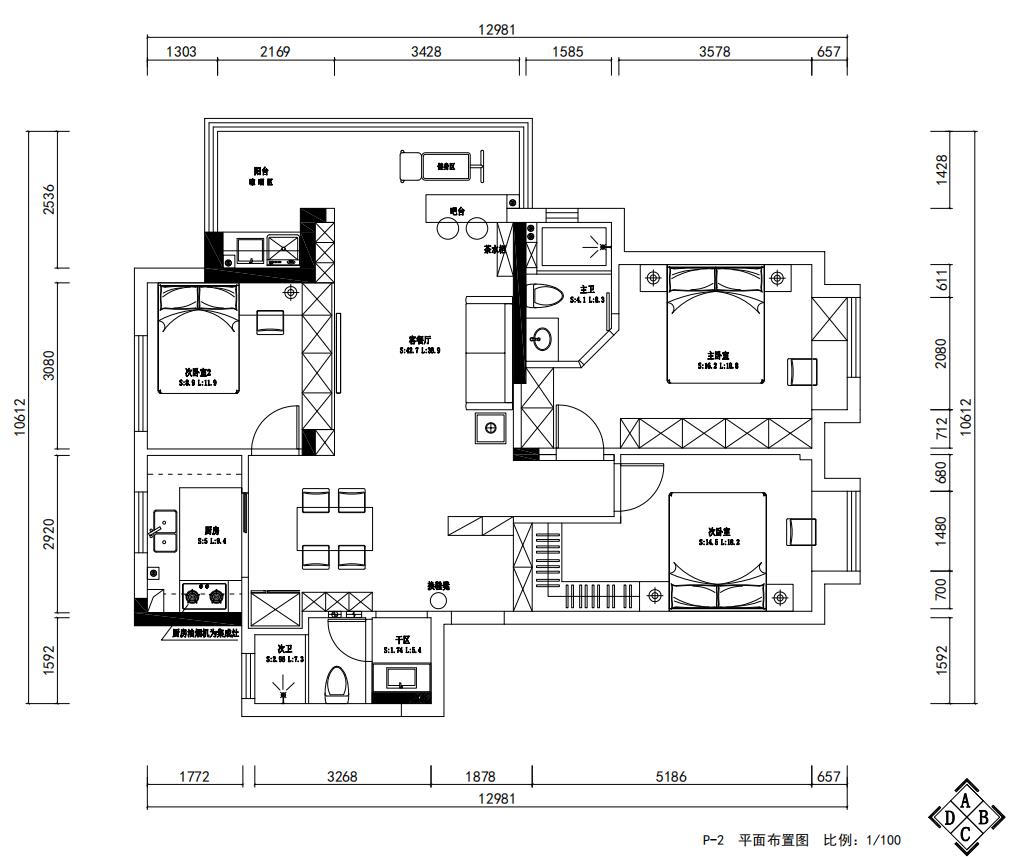
①入戶門直面次衛門,隱私性不佳
②主衛局促,陽臺、走道空間浪費多
③各個空間收納不足,利用率低

優化改造
①優化次衛布局,借用廚房空間嵌入洗漱區,并調整門向,規避大門與次衛門直對。
②擴大主衛,借主臥空間設洗手臺;分割臥室旁走道與陽臺,分別融入室內空間。
③承重墻不動,兩側定制衣柜餐邊柜,增強收納并巧妙遮擋承重柱,美化空間。



在黑白灰的主色調下,客廳彌漫著一股純粹而高雅的氣息,這種色調憑借其強大的包容性和可塑性,勾勒出了一幅和諧而宜居的生活畫卷。
線條,作為這幅畫卷的靈魂筆觸,以精準而富有韻律的比例分割,不僅強化了畫面的結構美,更賦予其震撼人心的視覺沖擊力,使每一處細節都躍然紙上,立體而鮮活。

十字線條勾勒懸浮電視背景,強化輪廓,木色格柵點綴其間,深化空間縱深感,整體設計層次分明,盡顯雅致與立體美學。

將目光聚焦于沙發背景,其設計以簡練線條搭配溫馨的暖光燈帶,僅僅幾筆勾勒,便展現出非凡的藝術韻味與格調。


過多的白色或許會顯得單調,但擺放一款線條圓潤的黑色沙發,不僅引領視覺下沉,還融入了靜謐與安寧的氛圍。一旁蓬勃生長的植物,更為空間增添了一抹清新與生機。

客廳與陽臺融合后,頂面梁體曾略顯突兀,但通過巧妙的斜面設計,現已與頂面流暢銜接。
筆直的線性燈則如同精致的紐帶,將陽臺、客廳與餐廳三個空間無縫串聯,營造出連貫而和諧的視覺體驗。



卓越的收納能力,是構建舒適生活的基礎。
入戶門旁的兩組玄關柜,為居者出門入戶提供了極大的便利。它們不僅承載著收納鞋履、衣物、包包等日常用品的功能,還能兼任餐邊柜的角色,使空間利用更高效。

餐桌的另一側,矗立著真正的餐邊柜。白色柜體融合黑玻酒柜,黑白之間,有藏有露,盡顯簡約而不失格調的生活美學,實用與美觀并存。

餐邊柜背景選用大理石,與端景臺和諧統一,其天然紋理交織冷峻質感,為用餐區域平添一份高貴與典雅,讓每次用餐都成為視覺與味覺的雙重享受。


主臥空間,一襲純白優雅鋪陳,宛如初雪覆蓋,靜謐且圣潔。整體設計沒有多余雜色侵擾,僅余純凈與安詳,悄然拉開每個夜晚甜蜜夢境的序幕。

陽臺無縫融入室內,巨幅落地窗化作自然畫框,將外界風光溫柔引入,讓自然光線肆意流淌,瞬間點亮室內,營造出一種既開放通透又兼顧私密性的生活享受。


擴容后的兒童房,不僅寬敞舒適,完美契合休憩之需,更巧妙融入學習區域,激發孩子無限探索欲。同時,增設了豐富的收納空間,讓每一樣物品都能井然有序。

由陽臺改造的學習區,既蘊含趣味性又兼備濃厚的書卷氣息。學習之余,偶爾眺望遠景,既護眼又讓身心得到放松。

一體式書柜與書桌規劃出簡致的收納體系,功能與美感維持著平衡。這里是學習小天地,也是展示個人手辦收藏的趣味空間,學習與興趣愛好和諧共存。
這個家,足以容納三代共聚一堂
開闊的布局、通透的視野、溫馨的氛圍、精致的細節……這些元素共同構筑了這個家的獨特魅力。
設計之初,我們細致考量居者的需求、喜好與生活方式,精心優化重組空間布局,力求實現多功能一體化。同時,巧妙打造“隱形”收納空間,確保空間通透開闊,為居者打造舒適宜人的生活環境。

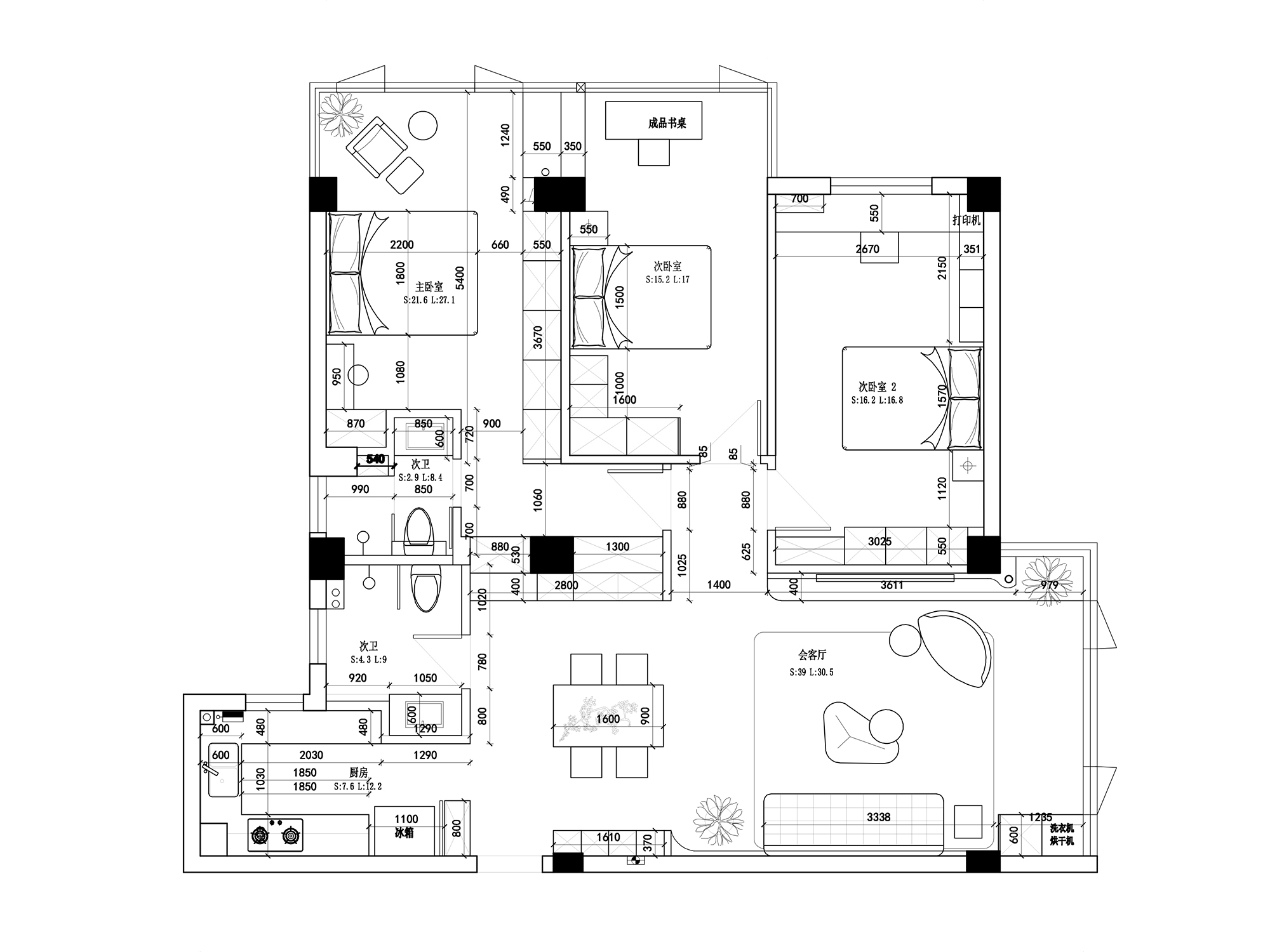
戶型解析
1、入戶無獨立玄關,收納稍顯不足
2、廚房空間小,做不了中西廚分區
3、走道較為狹長,空間有些浪費

優化改造
1、入戶門右側設半高玄關柜,長輩房外定制通頂鞋柜,增強入戶收納功能,優化空間布局。
2、整合餐廳、陽臺與廚房,新布局容納中西廚、儲物空間,并與餐廳融合,實現多功能一體化。
3、公衛內移創造拖地機空間,部分走道融入主臥套間,并借次臥走道定制儲物柜,優化收納。

這個家進門的位置是沒有獨立玄關的,進門就是客餐廳。

這里將右側墻體延伸,將長輩房外側定制的通頂鞋柜完全嵌入,實現“完美隱形”。
半高鞋柜與擺件、綠植巧妙融合,共同打造出充滿藝術氣息的精致端景。



柔和的日光透過玻璃窗,輕撫寬敞的客廳,溫暖的光輝彌漫每一個角落,為居室披上寧靜溫暖的華裳。
隨著日光鋪灑,視野無限延伸,通透的公區宛如居者內心的寬廣天地。這里,靜謐與喧囂并存,既能容納個人的沉思,也能承載全家的歡聚。


天然石材作為地臺,與懸浮電視背景及燈線精妙融合,于靜謐中流露藝術韻味,巧妙平衡休閑與雅致,構筑出別具一格的生活美學空間。

側邊巖板黑白交織,綠意盎然佇立其前,虛實相生間繪就一幅詩意盎然的水墨圖景,賦予平凡日常詩意之美。

陽臺一角,黑玻書柜巧妙嵌入,與電視背景和諧相融。隨手翻閱一本心儀的書籍,悠然落座于柔軟的懶人沙發,盡享寧靜的閱讀時光。

經線條與色塊精心勾勒的沙發背景墻,彰顯出別具一格的簡約與高雅,它完美融入整體家居環境,營造出和諧統一的視覺美感。

夢幻的紗簾將洗衣晾曬區隱藏,確保各功能區間互不干擾,使家居生活更靜謐有序。


改造后的餐廚,不僅空間更大,功能也更齊全。


定制高柜嵌入冰箱,形成一體化設計,既整潔美觀又實用。餐邊柜兼顧西廚功能,頂部增設酒柜,為日常生活增添更多趣味與便利。

餐桌旁并非僅有一面墻,實際上這里藏著隱形門,門后則是一個雜物間,家里不常用的物品都可以妥善收納于此。



無需復雜設計,深色系的半墻護墻板,就將臥室的氛圍渲染得愈發寧靜深邃,讓人不自覺地放松身心,回歸內心的平靜。

次臥經過改造,蛻變為時尚衣帽間,與主臥、主衛融合,共同構筑起一個奢華大套間,為品質生活增添無盡魅力與舒適。

利用窗臺位置定制轉角辦公區,墻體兩側定制滿墻衣柜,實現工作與收納的完美融合。

衛浴干濕分離,采用墻地一體式鋪貼設計,盡顯高級質感,同時帶來清透舒適的洗浴體驗。


毗鄰陽臺的房間,專為長輩休憩打造,淡雅色調營造出寧靜優雅的氛圍,每一寸空間都流淌著對長輩的深情關懷與深深尊重。

兒童房的設計,既注重實用性也兼顧趣味性。

床頭背景墻選用清新的淡藍色,營造出靜謐而雅致的氛圍,同時也為孩子的世界增添了童趣與夢幻的色彩。

窗前設有懸浮書桌,專為孩子閱讀學習而設計。書桌旁是滿墻書柜,轉角處采用弧形設計,有效降低磕碰風險,盡顯父母對孩子細致入微的關愛。
案例解析:該房為業主改善住房,男主人經常出差,比較喜歡酒店風格,女主喜歡健身,喝茶,故在客廳陽臺處設計留了健身區,吧臺區。該房主兒子和父母會偶而來居住,所以另外兩間房都以臥室設計為主,并設置了書桌功能。雖然設計整體很簡單,卻可以滿足自己喜好的同時也滿足了一家人居住的需求。
戶型解析:

方園小區三居室酒店風格住宅的面積是120平方米,經典的三室戶型兩個衛生間保障了居住的便捷性。房間的唯一缺憾便是客廳是比較狹長的,不過電視墻的空間范圍是很大的,完全可以滿足日常中使用的需要。兩個臥室距離比較近,而另外一個臥室則確保了私密性,居住的體驗感很好。
玄關:

現代的鞋柜設計滿足了衣服鞋子的擺放空間,入戶和玻璃之間采取了隔空玻璃的設計,既滿足了隔離感又不會覺得很悶。
客廳:


動靜結合的客廳設計效果理想,沙發椅滿足了日常生活中休閑的需要。客廳陽臺放入了健身器材,在家里便可以隨時健身具有理想體驗。
臥室:


臥室和書寫功能融合為一體,休息之后可以完成自己的工作,床鋪背景墻符合酒店風格,每一天都能夠感受居住酒店的快樂。
知精準報價 避裝修深坑
選擇您喜歡的風格
現代輕奢
現代美式
北歐
新中式
歐式
其他
知精準報價 避裝修深坑
選擇房屋面積區間
您的戶型
兩居室
三居室
四居室
五居室
六居室
知精準報價 避裝修深坑
稍等片刻,您的報價正在生中......
知精準報價 避裝修深坑
每日僅限前10名用戶