風格設計
案例簡介:本案例的業主是一對退休的老年夫婦,對退休生活充滿向往的他們選擇了購買一套小戶型房屋。而由于房屋空間面積并不算大,且兩個人都偏愛小清新的元素,因此希望設計師能夠對空間進行更加合理的規劃設計,在滿足兩人日常起居使用需求的前提下營造一種小資格調的清新浪漫感。
戶型解析:

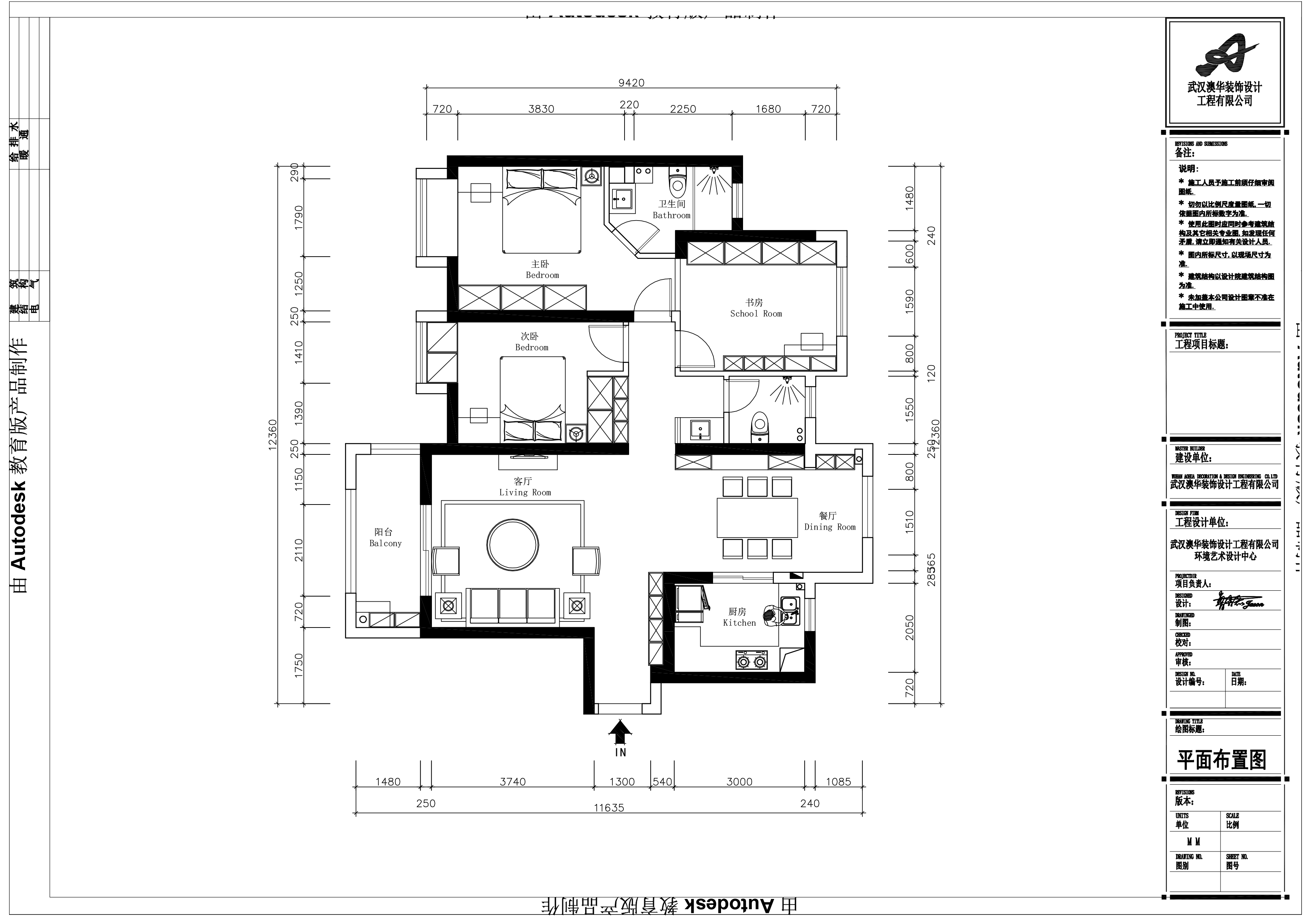
省醫保宿舍這套三居室的住宅面積只有90㎡,整體戶型面積并不大,不過好在空間結構合理且整體戶型結構規整,因此只需要進行合理的軟裝與空間規劃即可滿足兩個年輕姑娘的起居使用需求與審美需求。設計師按照業主的喜好選擇了典雅而又不失自由浪漫氣息的美式風進行軟裝,強調空間的清新感。同時,為了滿足業主在家辦公、閱讀的需求,將其中一個小面積次臥改造成書房。
客廳:



素雅的墻面利用各種景點照片打造成藝術感十足的照片背景墻,簡約耐看且設計成本低。
餐廳:

綠色桌椅搭配上方塊桌布,營造小清新浪漫氛圍。
廚房:

廚房借助復古的磚紅色瓷磚進行墻面鋪設,強調美式復古浪漫風情。
臥室:



照片墻面簡約耐看又清新,懸空式的儲物柜設計感十足,藍色窗簾則為空間增添明快自然氣息。
書房:

長條形儲物桌可滿足多個人同時辦公,方塊圖文窗簾簡約而又不失清新藝術氛圍。
案例簡介:本案業主為90后,比較追求個性、舒適、時尚,作為婚房考慮后期的實用性。 婚房考慮后期的實用性。 北歐風格是注重人與自然、社會、與環境的有機的科學的結合,它的身上集中體現了綠色設計、環保設計、 可持續發展設計的理念;它顯示了對手工藝傳統和天然材料的尊重與偏愛;它在形式上更為柔和與有機,因而富有濃厚的人情味;注重功能,簡化設計,線條 簡練,多用明快的中性色。
戶型解析:

綠地悅瀾灣這套120㎡的三居室住宅原有的戶型結構十分規整,且不存在著難以設計利用的空間,因此設計師只需要做的就是進行合理的功能分區以及軟裝設計。根據業主的需求與想法,設計師將廚房、客廳、就餐區域設計在距離入戶門較近的區域,而其他空間則打造成臥室、書房等休憩空間,以起到動靜分離的作用。
客廳:

簡約的白色水泥墻搭配上色彩明麗的沙發,整體給人明快清新的高級氛圍感。
臥室:


灰色墻面搭配上個性感強烈的掛畫,滿足居住者審美需求。放射形燈具簡約時尚且易于打理。
書房:

與墻面融為一體的嵌入式儲物架設計藝術感十足而又不失功能實用性。
知精準報價 避裝修深坑
選擇您喜歡的風格
現代輕奢
現代美式
北歐
新中式
歐式
其他
知精準報價 避裝修深坑
選擇房屋面積區間
您的戶型
兩居室
三居室
四居室
五居室
六居室
知精準報價 避裝修深坑
稍等片刻,您的報價正在生中......
知精準報價 避裝修深坑
每日僅限前10名用戶