案例簡介:
歐式風多使用于大戶型房屋裝修設計,因為該風格需使用到各類精雕細琢的裝飾元素,如若空間面積較小,就會讓房屋看起來過于壓抑。而本案例的業主則偏愛歐式風,如何將112㎡的房屋打造出帶有歐式貴族典雅氣息的豪宅就是本次的設計難題。而這次設計師則根據業主的喜好,選擇了帶有歐式風典雅復古美而又不會對空間體量要求過大的簡歐風進行裝飾,通過舍棄大量復雜的肌理與裝飾來營造一種清新的歐式風情。
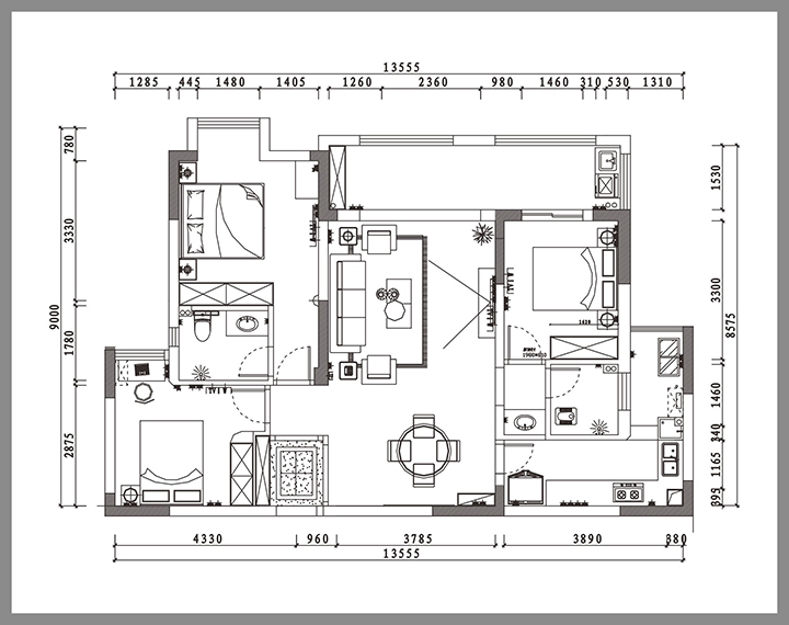
戶型解析:

中建南湖壹號這套112㎡的三居室住宅戶型相對比較緊湊,且原有格局沒有較大缺陷,只是入戶玄關的面積較小,難以起到該有的效果。因此設計師在設計時,選擇保留原有的空間結構,同時利用一些色彩、油畫的元素來點綴入戶玄關,以提升玄關區域的美感。同時,借助大面積的窗戶將室外的陽光與景色引入室內,從視覺上起到擴大空間的作用,讓整個家居空間更顯高級韻味。
玄關:

為了讓不大的玄關看起來更加的精致,設計師借助一面藝術半隔斷墻進行裝飾,避免室內景象直接映入來者眼中,有效提升了空間的私密感與韻味感。而玄關側面出的收納柜設計,則有效提升了空間利用率。
客廳:

客廳區域保留了歐式風最為常見的用色,既經典暖黃色,通過暖黃色與深棕色的搭配來營造一種渾厚而又溫馨的復古典雅韻味。而家具則選擇了造型相對比較簡約且色彩素雅的白色沙發,以提升空間的大氣感。
臥室:

臥室空間需強調寧靜的氛圍感,因此設計師在對臥室區域進行設計的時候使用了光線相對比較柔和的燈具,以強調靜謐感。而床頭處的簡約藝術掛件則讓整個臥室空間多了一抹自然的氣息美。
知精準報價 避裝修深坑
選擇您喜歡的風格
現代輕奢
現代美式
北歐
新中式
歐式
其他
知精準報價 避裝修深坑
選擇房屋面積區間
您的戶型
兩居室
三居室
四居室
五居室
六居室
知精準報價 避裝修深坑
稍等片刻,您的報價正在生中......
知精準報價 避裝修深坑
每日僅限前10名用戶