案例介紹:本案例的業主是一位留學歸來的海歸青年,常年的海外生活讓他對歐洲文化情有獨鐘,也因此在住宅的設計上他希望能夠營造出古典的歐洲風情美。因此設計師在設計本案例的時候,遵照業主的喜好選擇了傳統的古典歐式裝修風格,同時在家裝上大量使用各類歐式元素,以讓空間能夠還原一種“原汁原味”的歐式貴族感。
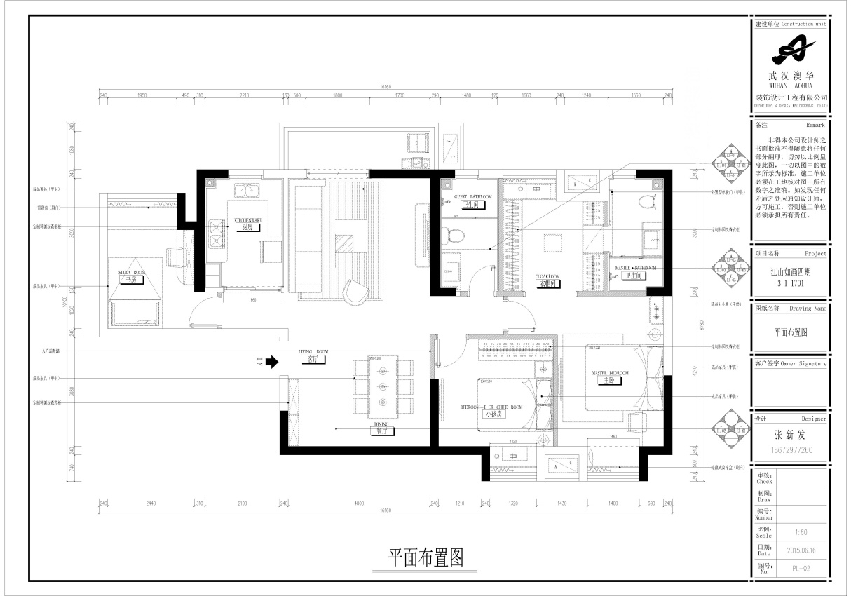
戶型解析

江山如畫的這套148㎡的三居室住宅空間面積其實相對比較大,且戶型相對比較平整方正,因此選用歐式裝修風格這種大體量美的家裝風格也相對比較合適。而根據業主的需求,設計師在空間中獨立分隔出一塊較大的區域作為衣帽間,同時將主臥旁邊的區域打造成兒童房,以滿足未來孩子的起居使用需求。
客廳:

暖黃色的燈光營造了一種復古而又典雅的歐式風情,而碎花、歐式風情吊燈及各種帶有歐洲韻味的裝飾點綴,則讓空間的歐式貴族氣息得到了更好的展現。
臥室:

米色的墻面搭配上帶有天然紋理的木質地板,營造了一種隨意簡約而又不失高級的格調感。而桌椅處的浮雕設計及弧度造型則有效增添了空間的小資格調氣息。
知精準報價 避裝修深坑
選擇您喜歡的風格
現代輕奢
現代美式
北歐
新中式
歐式
其他
知精準報價 避裝修深坑
選擇房屋面積區間
您的戶型
兩居室
三居室
四居室
五居室
六居室
知精準報價 避裝修深坑
稍等片刻,您的報價正在生中......
知精準報價 避裝修深坑
每日僅限前10名用戶