案例簡介:本案例的房屋位于喧囂的住宅區高層,有著絕佳的采光通風及觀賞視角,設計師將陽臺、會客區域與室外景色作為一個整體進行規劃設計,有效提升了室內外的聯系感,讓室外景色能夠“借”入會客區域,以提升整個客廳區域的格調感。而相同材質的穿插使用及不同類型塊面的碰撞,則讓整個家居空間更顯豐富,搭配以質感元素,品質韻味呼之欲出。
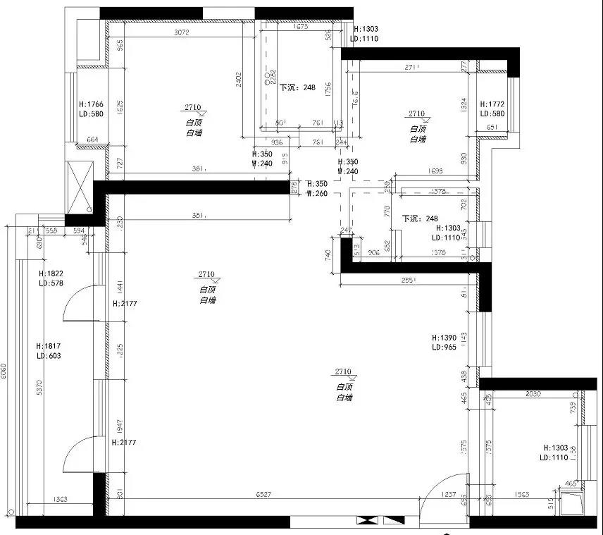
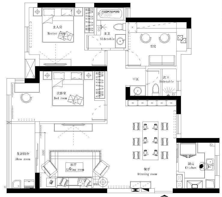
戶型解析:


新城璟悅城的這套三居室面積為123平方米,整體戶型南北通透、采光較好,設計師在設計時將重點放在了功能配比與動靜分區上,將休憩區域與會客區域、就餐區域隔開,以提升生活質感。為滿足主人的辦公、閱讀需求,設計師將一塊空間劃分為迷你書房,搭配以簡單的裝飾,讓空間兼具功能性與美觀性。
客廳:



白色水泥墻搭配上鑲金邊處理的電視背景墻,一種典雅的輕奢氛圍呼之欲出。綠色的絲絨沙發,則讓空間的色彩感更為跳躍活潑。
廚房:

廚房區域以暖黃色為主基調色,簡約清新而又不會顯得過于單調,核桃色的木質櫥柜,則讓空間更顯高級品質。
臥室:

臥室區域沒有過多的裝飾,僅以兩幅簡單藝術畫的疊掛作為裝飾點綴,簡約而又不失浪漫格調。
				
				
					
				知精準報價 避裝修深坑
選擇您喜歡的風格
									現代輕奢
									現代美式
									北歐
									新中式
									歐式
									其他
知精準報價 避裝修深坑
選擇房屋面積區間
您的戶型
									兩居室
									三居室
									四居室
									五居室
									六居室
知精準報價 避裝修深坑
稍等片刻,您的報價正在生中......
知精準報價 避裝修深坑
						每日僅限前10名用戶