案例簡介:該案例的業主一位偏愛歐洲文化的都市白領,喜歡各種帶有設計感且文化地緣的元素。因此設計師根據業主的喜好還有生活習慣,利用材料本身的質感及各種華麗的造型設計,為業主量身打造了一個充滿歐洲貴族風情的個性住宅。大量淺色系色彩搭配上朦朧的燈光,有效提升了整個家居空間的浪漫格調。
戶型解析:


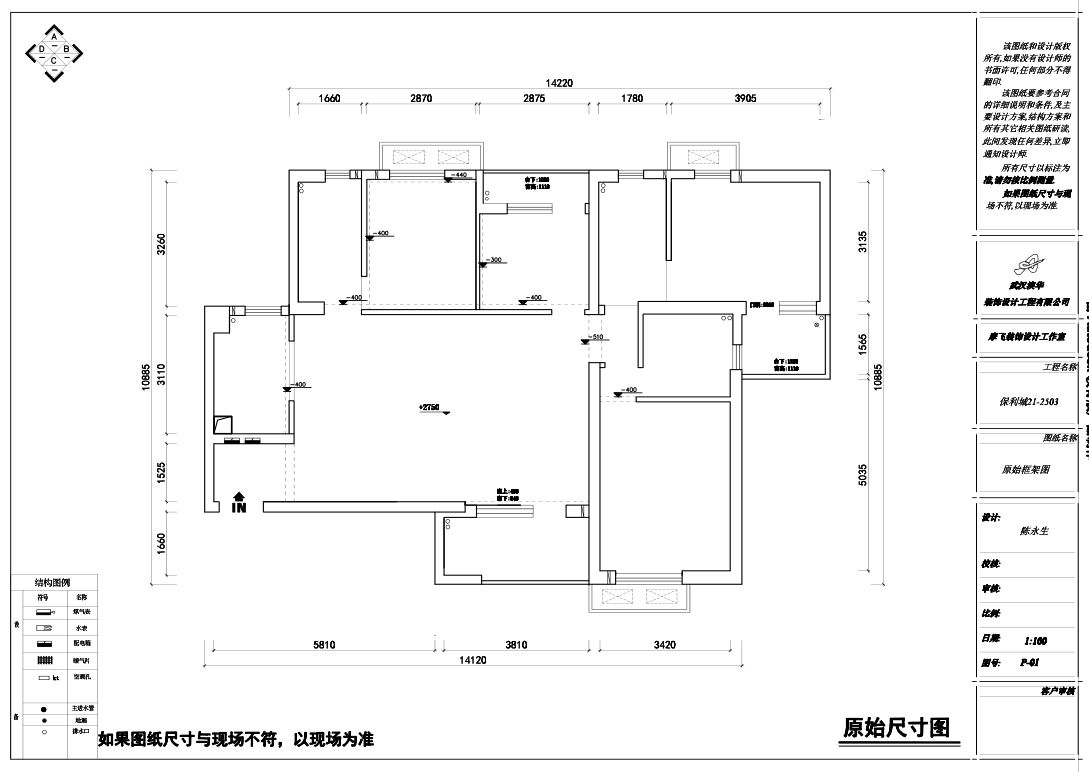
保利城這座177㎡的三居室住宅,原始的戶型結構已經進行了一定的功能分區,該房屋南北通透、采光較好,因此設計師在原有戶型結構的基礎上保留原有優勢,同時借助部分軟隔斷提升空間的界限感與通透感。大量帶有歐式風情的裝飾元素,則能夠讓裝修后的房屋更好的契合業主的審美。
客廳:



華麗的巨型吊燈搭配上柔軟的淺色啥呀,低調而不失華麗貴族感。家具上的細節處理,則則讓整個空間更具精致美。
餐廳:



藍底印花墻紙小清新感十足,搭配上色彩清新的餐桌椅,高雅格調中透露著田園清新。
知精準報價 避裝修深坑
選擇您喜歡的風格
現代輕奢
現代美式
北歐
新中式
歐式
其他
知精準報價 避裝修深坑
選擇房屋面積區間
您的戶型
兩居室
三居室
四居室
五居室
六居室
知精準報價 避裝修深坑
稍等片刻,您的報價正在生中......
知精準報價 避裝修深坑
每日僅限前10名用戶