案例簡介:本案例的主人公對于簡約而又品質的舒適生活情有獨鐘,因此在進行室內裝飾的時候她希望設計師不用使用過于艷麗的色彩以及各種網紅化的元素,以簡簡單單的舒適感為主即可。設計師根據業主的需求審美以及生活習慣,為業主挑選了素雅感較為強烈的簡約風作為主裝修基調,舍棄大量華麗而又繁瑣的元素,利用材料原始的質感來營造一種返璞歸真的自然舒適感。
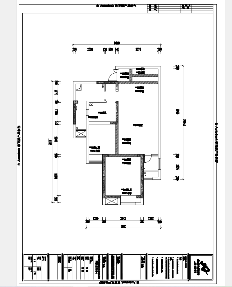
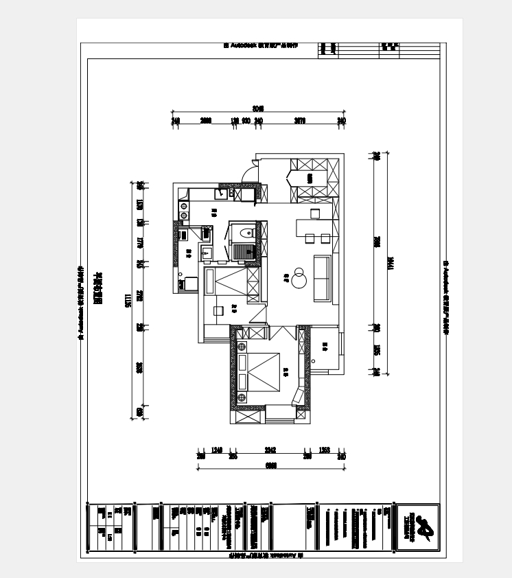
戶型解析:


百瑞景這套三居室的住宅占地面積約為90㎡,戶型結構緊湊且空間浪費少,整體需進行改動的區域并不多,且能夠滿足業主的日常使用需求,因此設計師保留了原有的空間結構。為提升空間的利用率,提高業主生活品質,設計師將狹長的客廳中切割出一小塊區域打造成迷你衣帽間,在不破壞會客區域功能使用的同時,有效提升了整個空間的合理規劃性。
客廳:

客廳借用大面積的書柜作為背景墻裝飾,簡約而又不失使用感,同時還有效提升了空間的文藝氛圍。
餐廳:

就餐區域借助白色與木色的碰撞營造一種自然的舒適美,鏤空式的儲物柜搭配上清新做舊的自然藝術掛件,典雅而又藝術感十足。
廚房:

廚房空間面積不算大,因此設計師選用了經典的“L”形設計,避免出現難以轉身的情況。同時借助大面的儲物收納設計來滿足各類廚房用具的歸置需求。
次臥:

臥室區域借用簡單的色彩來打造空間的結構感,白色與淡藍色的搭配自然而又舒適,同時從視覺上起到增強空間結構鋼的作用。
知精準報價 避裝修深坑
選擇您喜歡的風格
現代輕奢
現代美式
北歐
新中式
歐式
其他
知精準報價 避裝修深坑
選擇房屋面積區間
您的戶型
兩居室
三居室
四居室
五居室
六居室
知精準報價 避裝修深坑
稍等片刻,您的報價正在生中......
知精準報價 避裝修深坑
每日僅限前10名用戶