案例簡介:復式住宅雖然可利用面積更多,但是存在著樓梯結構,因此在進行規劃設計的時候一定要充分利用好樓梯處的面積,否則不僅會造成空間浪費,還會影響整體美觀性。設計師在與業主進行深入的溝通之后,舍棄樓道區域的再利用,借助綠植提升空間的美觀度。而二層外部區域則就用玻璃走廊進行圍隔,避免出現安全隱患的同時還不會造成空間的擁堵感。
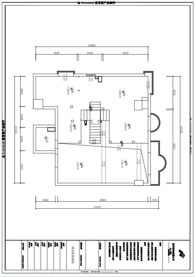
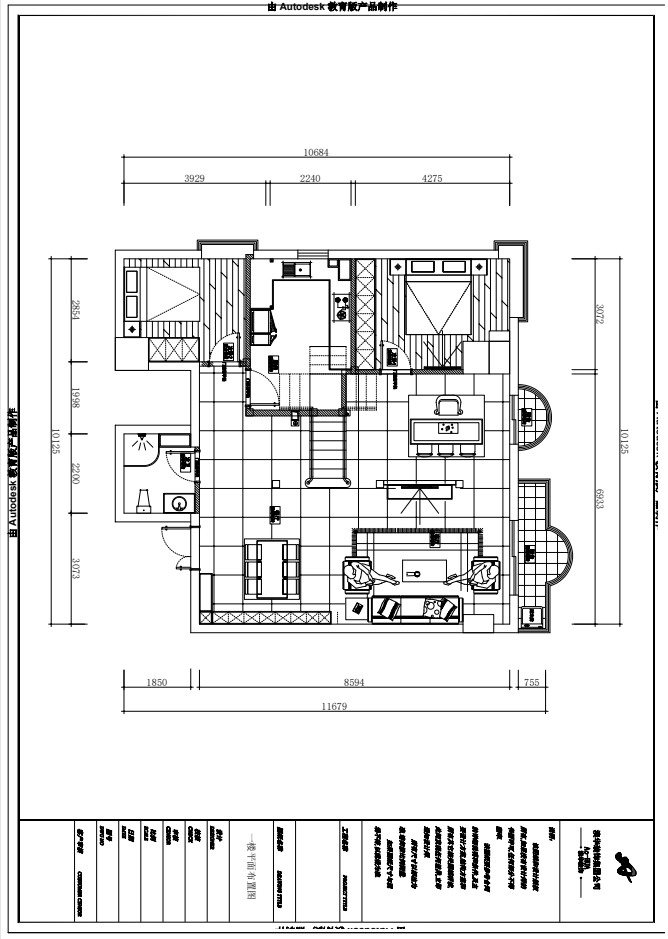
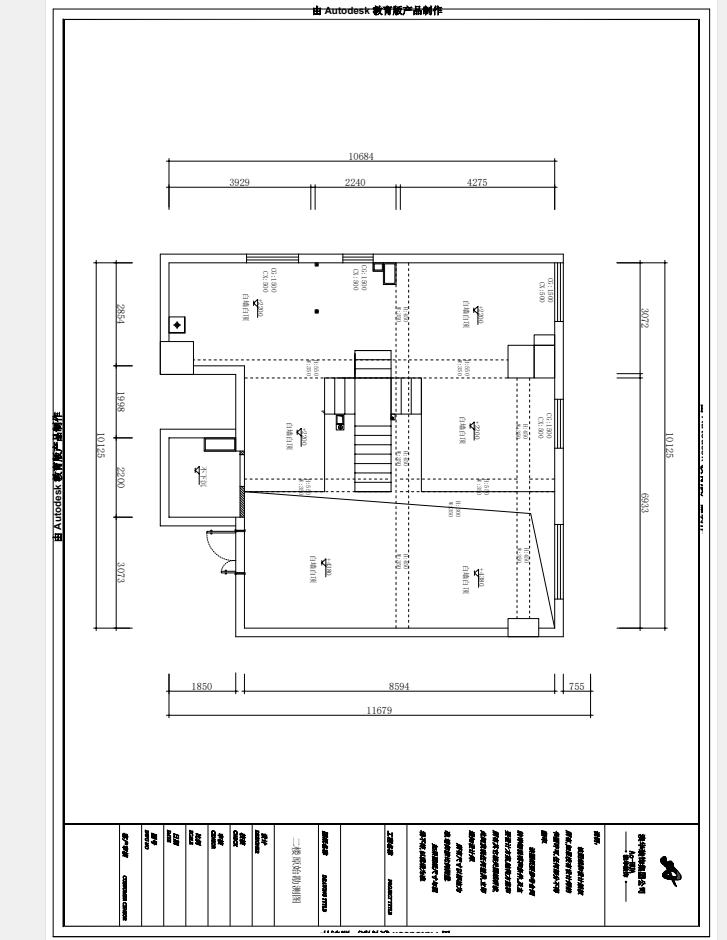
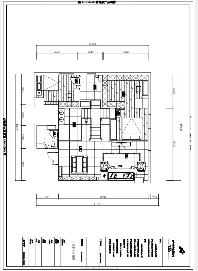
戶型解析:




聚豪華庭這套190㎡的四居室為復式樓,客廳擁有大陽臺,通風采光好,戶型方正,結構合理,空間適中,是一套不可多得的經典戶型。為了提升房屋整體美觀度,設計師借用“Y”形樓梯進行一二層空間的銜接,而樓梯扶手處則利用帶有金屬線條降表處理的玻璃進行打造,簡約而又不失雍容典雅。二層空間層高相對比較矮,因此設計師選用了大量矮腳家具進行裝飾,避免出現空間違和感。
客廳:



大面積的白色點綴上少量黑色,經典耐看而又不失現代時尚氣息。
餐廳:

就餐區域被設置在一樓,借助大理石臺面打造餐桌,簡約而又不失輕奢高級感。
衣帽間:

白色櫥柜搭配上原色色地板,兩種素色之間的組合清新而又不失結構美。
衛生間:


為提升衛生間區域的潔凈感,設計師選用了大面積的白色作為衛生間主基調色,搭配以少量綠植進行點綴,清新又高雅。
知精準報價 避裝修深坑
選擇您喜歡的風格
現代輕奢
現代美式
北歐
新中式
歐式
其他
知精準報價 避裝修深坑
選擇房屋面積區間
您的戶型
兩居室
三居室
四居室
五居室
六居室
知精準報價 避裝修深坑
稍等片刻,您的報價正在生中......
知精準報價 避裝修深坑
每日僅限前10名用戶