案例簡介:傳統中式風多給人以沉穩、大氣渾厚感,因此多受老年群體的偏愛,而本案例的業主作為退休人士就對中國傳統文化情有獨鐘,因此設計師在與業主交流后敲定以中式風裝飾空間。大面積的核桃木搭配上簡約優雅的潔凈白,在平衡空間視覺效果的同時給人以清新的悠然古韻美感。
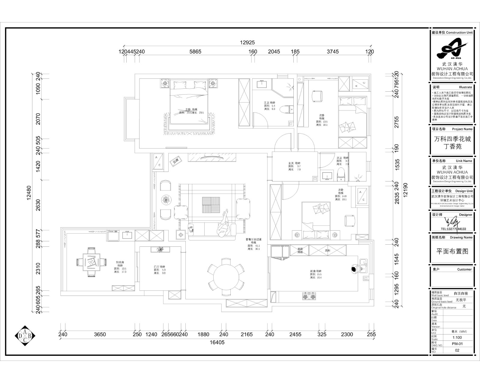
戶型解析:


萬科四季花城這套140㎡的三居室住宅整體結構近似正方形,因此設計師在進行空間規劃設計的時候就將客廳作為核心店,其他功能區域則圍繞客廳展開設計,以確保整體空間的和諧感。由于房屋面積不算寬敞,因此設計師在進行裝飾設計的時候舍棄了大量中式造型設計,而是借助色彩的搭配與傳統韻味畫來展示空間的清新古韻感。
客廳:


簡約木質仿古家具與現代時尚感濃烈的大理石背景墻之間的碰撞,呈現了宜古宜今的獨特時尚美。
次臥:


大面積的白色點綴山素雅的山水畫掛畫,強調清幽雅致的藝術氛圍。
衛生間:

透明玻璃通透性強,既可以起到干濕分離作用又不會顯得過于生硬,黑色鑲邊處理則為空間增添結構感。
| 姓名* | |
| 樓盤* | |
| 電話* | |
知精準報價 避裝修深坑
選擇您喜歡的風格
現代輕奢
現代美式
北歐
新中式
歐式
其他
知精準報價 避裝修深坑
選擇房屋面積區間
您的戶型
兩居室
三居室
四居室
五居室
六居室
知精準報價 避裝修深坑
稍等片刻,您的報價正在生中......
知精準報價 避裝修深坑
|
每日僅限前10名用戶