案例簡介:本案例的業主是一對年輕的90后夫妻,家中的常住人口除了夫妻二人之外還有一個剛上小學的孩子,偶爾父母也會過來探望。因此設計師在進行規劃設計的時候,優先考慮業主夫婦與孩子的起居使用需求,同時為業主選擇了簡約時尚風進行裝飾,借助各類現代化的元素打造出一個時尚而又不失品味的高級家居。
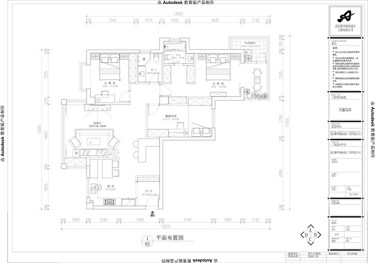
戶型解析:

同鑫花園這套159㎡的三居室房屋整個的戶型結構并不規整,但也相對比較常見,整體呈現“L”形,因此需要設計師更加合理的進行空間規劃,避免由于戶型結構不夠規整帶來的壓抑感與局限感。根據業主的需求,設計師將主臥外部空間與主臥區域直接打通,并改造成一個臥室內的衛浴空間,提升主人日常洗漱的便利性。而為了滿足業主的閱讀、辦公需求以及老人偶爾過來探望的居住需求,設計師將一個次臥改造成書房,同時搭配上可收縮式家具,以滿足使用需求。
客廳:

大面積的大理石背景墻與白色水泥墻相得益彰,既不會過于突兀又能夠提升空間品質格調感。
臥室:



菱形色彩構成的墻面簡約而又不失濃烈的個人色彩,有效提升了空間的品味感與藝術氛圍。
衛生間:


衛生間借助大面積白色進行裝飾,搭配上灰色儲物柜,簡約而又不失潔凈清新感。
知精準報價 避裝修深坑
選擇您喜歡的風格
現代輕奢
現代美式
北歐
新中式
歐式
其他
知精準報價 避裝修深坑
選擇房屋面積區間
您的戶型
兩居室
三居室
四居室
五居室
六居室
知精準報價 避裝修深坑
稍等片刻,您的報價正在生中......
知精準報價 避裝修深坑
每日僅限前10名用戶