案例簡介:藝術源于生活,而生活是藝術的來源,在生活中追求藝術之美的存在。房屋設計選擇現代簡約的格式不僅僅是簡單,而是房屋風格具有一種獨特的時尚感。別墅上下一共三層,每一層都保持現代簡約的格調,在保障大氣的同時也不會失去時代感。對于多子的家庭而言,也不會出現房屋選擇方面的困難。
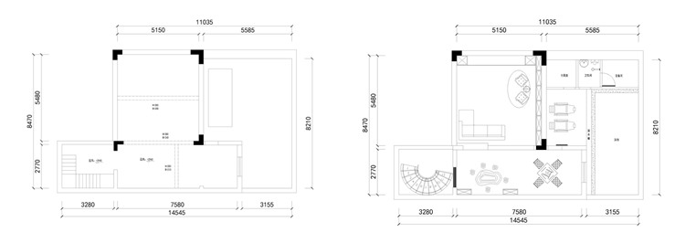
戶型解析:



招商公園1872小區這套大三層的別墅是350平方米,別墅分為負一層和地面兩層,每一層戶型設計都方正規整,臥室衛生間廚房設計應有盡有。上下三層空間很大,對于多子家庭非常合適。不僅僅可以滿足每一個人居住的空間要求,還可以保持在一個別墅內部生活的情誼。
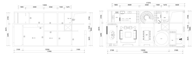
玄關:

正方形的玄關寬敞大方,吊燈吊燈的橢圓形設計和地面瓷磚圖案相輔相成,樸素的灰色確保了居住的生活寧靜。
客廳:

用心的吊頂設計凸顯了獨特性以及房屋舉架的高度,灰色和紅色椅子的搭配不僅僅很時尚,閑暇在客廳休息能夠感受到濃濃的時尚感。
餐廳:

和客廳連接的餐廳雖然呈現長方形,擺放一張六人桌也是空間足夠的。餐廳舉架超級高,用餐完全不會感受到任何的壓迫感。
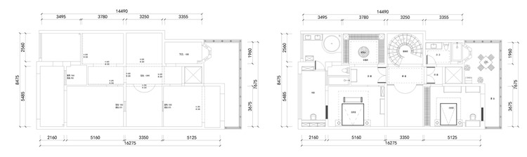
臥室:

臥室不僅僅滿足了居住的舒適度,臥室內部都搭配了學習放松空間,即便是一整天窩在臥室里也不會感覺無聊。
知精準報價 避裝修深坑
選擇您喜歡的風格
現代輕奢
現代美式
北歐
新中式
歐式
其他
知精準報價 避裝修深坑
選擇房屋面積區間
您的戶型
兩居室
三居室
四居室
五居室
六居室
知精準報價 避裝修深坑
稍等片刻,您的報價正在生中......
知精準報價 避裝修深坑
每日僅限前10名用戶