案例介紹:本案以簡化整合,改變后的空間呈上升之勢,置身其中給人積極向上之感,表現業主對快樂人生的追求;設計采用吧臺把門廳與餐廳兩個空間加以適當區分,形成一個隔而不斷,分而不離的互動空間,愜意的、時尚的、成功人士的品質生活體驗盡在其中。
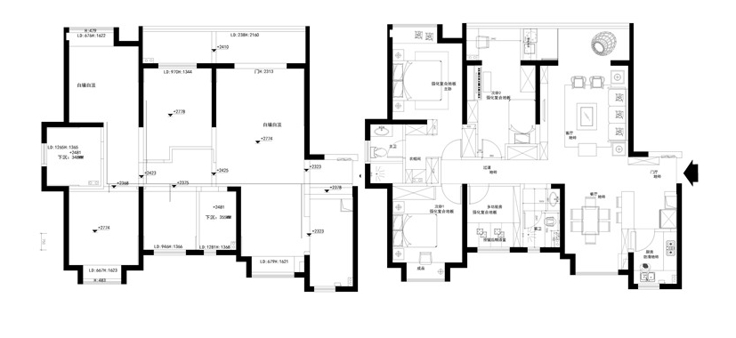
戶型解析

戶型格局總體方正,原始戶型中,客餐空間畸角處多,空間利用不合理,多處零碎空間沒有得到規劃,設計師將廚餐開放式設計,并通過過道劃分出客廳與餐廳,功能區變得更加敞亮了;臥室雖然集中分布,但舒適度不高,設計師在主臥中設計了衛生間,公衛干濕分離,提升了居住的舒適度。
客廳

客廳以低飽和度的家具裝飾為主,設計師選擇了比較精致的沙發和地毯,同時在搭配上流利的裝飾畫,突出了客廳的簡約與精致;電視墻的設計以功能性為主,黑白二色的相互融入,令室內變得更加高級。
餐廳

餐廳的細節可以感受到現代簡約風格自帶的溫馨之感,大理石餐桌搭配墨綠色餐椅,讓空間變得更加時尚,裝飾畫、燈具和綠植的點綴,賦予了空間活力與生機。
臥室

臥室中使用嵌入式衣柜,空間變得更加通透自然,不僅滿足了收納需求,也提升了臥室的空間感,冷色背景墻與暖色床品的相互結合,令空間變得更加富有藝術性。
| 姓名* | |
| 樓盤* | |
| 電話* | |
知精準報價 避裝修深坑
選擇您喜歡的風格
現代輕奢
現代美式
北歐
新中式
歐式
其他
知精準報價 避裝修深坑
選擇房屋面積區間
您的戶型
兩居室
三居室
四居室
五居室
六居室
知精準報價 避裝修深坑
稍等片刻,您的報價正在生中......
知精準報價 避裝修深坑
|
每日僅限前10名用戶