小區:漢口1872
戶型:106㎡;107㎡;110㎡;122㎡;137㎡

漢口1872項目由兩大央企招商蛇口與中國鐵建地產集團,承時代發展大勢,聯袂攜手,落位解放大道硚口宗關;約6000㎡保留文化建筑,以歷史為底色,描繪硚口百年的文明記憶,形成完整且具活力的生活社區,打造武漢人居迭代新作--漢口1872,開啟武漢生活新浪潮。
為了給漢口1872的業主帶來更好的生活體驗,澳華裝飾的設計師全面解析建面106㎡-137㎡戶型的戶型方案。從居住者出發,從場景入手,平衡視覺效果與居住功能,擴展生活秩序!
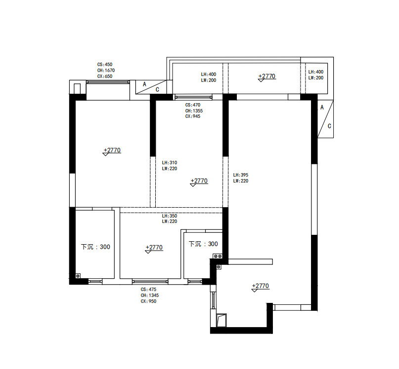
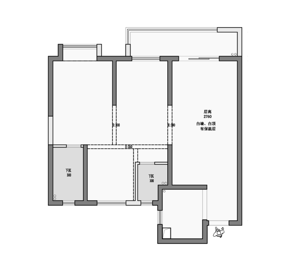
106㎡戶型解析

△原始結構圖
戶型優點
? 戶型方正,活動區域開闊。
? 擁有觀景大陽臺。
戶型缺點
? 廚房相對比較小,活動受限。
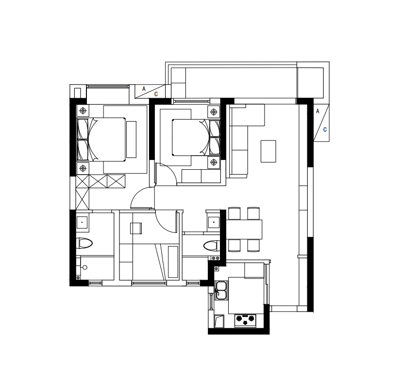
方案一
開放式廚房,打造開闊互動公區

思路解析
1 開放式廚房設計,同時利用島臺連接餐桌,制造了一個現代感十足的餐廚空間。
2 冰箱移到餐廳區域,釋放廚房空間。
3 陽臺設置洗衣區,將晾曬與休閑結合。
4 主衛納入主臥,形成便捷套臥;利用L型衣櫥打造衣帽間,增加收納。
5 保留三房,滿足多人口家庭居住需求。
效果圖展示


方案二
封閉式廚房+舒適三房

思路解析
1 封閉式中餐廚房,利用可開可合的玻璃移門,隔絕油煙不隔絕采光。
2 玄關到客廳設置一整墻背景柜,視覺大氣純凈,同時增加收納空間。
3 次衛做干濕分離,方便多人同時使用。
4 主衛納入主臥,形成便捷套臥;利用L型衣櫥打造衣帽間,增加收納。
5 保留三房,滿足多人口家庭居住需求。
效果圖展示


方案三
開放式格局,打造開闊互動公區

思路解析
1 開放式廚房設計,同時利用島臺連接餐桌,制造了一個現代感十足的餐廚空間。
2 餐廳與客廳打通,制造開闊互動的公共區域。
3 陽臺設置洗衣區,將晾曬與休閑結合。
4 主衛納入主臥,形成便捷套臥;利用L型衣櫥打造衣帽間,增加收納。
5 保留三房,滿足多人口家庭居住需求。
效果圖展示


107㎡戶型解析

△原始結構圖
戶型優點
? 客餐廳的連貫性比較好。
? 客廳的陽臺比較大,可以讓空間更明亮。
? 主臥空間的空間比較寬敞。
戶型缺點
? 作為小三房戶型,第三個房間比較小,如果放床整個空間都塞滿了。
? 房子的承重墻體比較多,可變性不大,在空間分割上有很多局限性。
? 廚房空間比較小。
方案一
開放式設計,增設社交廚房

思路解析
1 開放式廚房設計,利用吧臺連接西廚,擴大使用面積。
2 餐廳與客廳之間采用可開可合的玻璃門隔斷,合上時隔絕油煙,打開時空間互聯。
3 陽臺一半納入客廳,一半納入臥室,擴展了臥室空間。
4 主衛納入主臥,形成便捷套臥;利用L型衣櫥打造衣帽間,增加收納。
5 保留三房,滿足多人口家庭居住需求。
效果圖展示


方案二
觀景大陽臺+舒適三房

思路解析
1 開放式廚房設計,利用吧臺連接西廚,擴大使用面積。
2 餐廳與客廳之間采用可開可合的玻璃門隔斷,合上時隔絕油煙,打開時空間互聯。
3 客廳和臥室的陽臺聯通,構建開闊的觀景大陽臺。
4 主衛納入主臥,形成便捷套臥;利用L型衣櫥打造衣帽間,增加收納。
5 保留三房,滿足多人口家庭居住需求。
效果圖展示


110㎡戶型分析

△原始結構圖
戶型優點
? 南北通透,大陽臺,采光通風良好。
? 戶型功能區域劃分清晰。
戶型缺點
? 北面臥室空間較小。
? 陽臺利用率不高。
方案一
舒適三房,滿足多人口家庭

思路解析
1 入戶加長鞋柜分區設置換鞋掛衣區,增加儲物收納實用性。
2 餐廳餐桌靠墻擺放,家居動線合理開闊,餐邊酒柜美觀實用。
3 兒童房與陽臺連通,有獨立的學習空間。
4 次臥床位靠墻擺放,讓出大部空間活動。
效果圖展示


方案二
奢華套臥+開闊公區

思路解析
1 入戶加長鞋柜分區設置換鞋掛衣區,增加儲物收納實用性。
2 餐廳餐桌靠墻擺放,家居動線合理開闊,餐邊酒柜美觀實用。
3 兒童房與陽臺連通,有獨立的學習空間。
4 一間面積較小的次臥作為衣帽間納入主臥,形成一個套間,收納更全面。
效果圖展示


方案三
獨立書房,豐富生活場景

思路解析
1 入戶加長鞋柜分區設置換鞋掛衣區,增加儲物收納實用性。
2 餐廳餐桌靠墻擺放,家居動線合理開闊,餐邊酒柜美觀實用。
3 獨立書房兼客房,實用性強。
效果圖展示


122㎡戶型分析

△原始結構圖
戶型優點
? 南北通透,采光通風好。
? 雙陽臺,明亮寬敞,更多可能性。
戶型缺點
? 餐廳略顯緊湊。
? 廚房空間有限。
方案一
舒適三房+增設陽臺辦公區

思路解析
1 通陽臺一分為二,讓南邊次臥功能更加齊全。
2 過道處的酒柜(儲物柜)可以一柜被餐廳、客廳兩個空間所用。
3 廚房三聯動移門,使出入口最大化。
效果圖展示


方案二
開闊雙陽臺+舒適三房

思路解析
1 保留了雙陽臺的開闊性,讓陽臺有更多的可能性。
2 主臥室開放式的衣帽間讓女主人擁有更美好的儀式感。
3 廚房三聯動門,使廚房和餐廳之間隔而不斷,有著更好的聯系。
效果圖展示


137㎡戶型解析

△原始結構圖
戶型優點
? 南北通透,大陽臺,采光通風良好。
? 戶型功能區域劃分清晰。
戶型缺點
? 北面房間小,飄窗利用率不高。
方案一
去客廳化設計+開放式書房

思路解析
1 客廳與陽臺拉通,大橫廳落地窗,采光視線絕佳。
2 沙發背后做開放式書房,可以有多種打開方式,工作、品茗...
3 次臥擴充衛生間及飄窗空間,尺度合理。
4 兒童房安置高低床。
效果圖展示



方案二
去客廳化設計+舒適三房

思路解析
1 客廳與陽臺拉通,大橫廳落地窗,采光視線絕佳。
2 餐廳設置操作柜,提升利用率,滿足各種廚電的擺放。
3 次臥擴充衛生間及飄窗空間,尺度合理。
效果圖展示


| 姓名* | |
| 樓盤* | |
| 電話* | |
知精準報價 避裝修深坑
選擇您喜歡的風格
現代輕奢
現代美式
北歐
新中式
歐式
其他
知精準報價 避裝修深坑
選擇房屋面積區間
您的戶型
兩居室
三居室
四居室
五居室
六居室
知精準報價 避裝修深坑
稍等片刻,您的報價正在生中......
知精準報價 避裝修深坑
|
每日僅限前10名用戶