小區:融創和平中心
戶型:89㎡;102㎡;106㎡;118㎡;124㎡;125㎡

————————
融創和平中心占據青山核心段,位于和平大道主軸上,項目緊鄰印象城,出行便捷,更享受周邊資源聚合帶來的強勁勢能。同時,該項目毗鄰和平公園,讓你不必奔赴遠方,在家門口即可攬盡四季風華。
為了給融創和平中心的業主帶來更好的生活體驗,澳華裝飾的設計師全面解析建面89㎡-125㎡的戶型方案。從居住者出發,從場景入手,平衡視覺效果與居住功能,擴展生活秩序!
————————
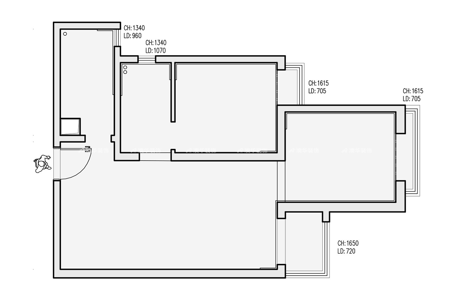
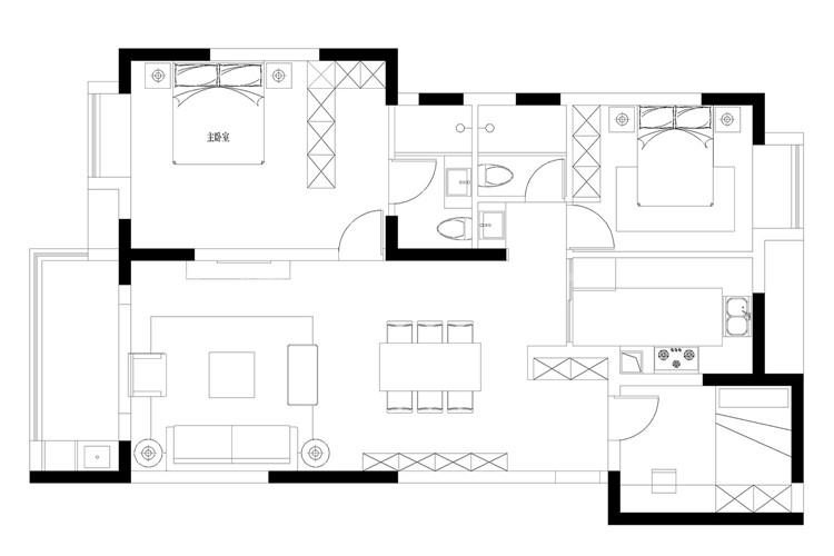
89㎡戶型解析

戶型優點:
1、戶型方正,南北通透
2、南向臥室,采光優越
3、客餐廳相連,視野更佳
戶型缺點:
1、廚房相對較小,冰箱太占空間,操作受限
2、陽臺太小,影響室內采光,空間利用率不高
方案一
開闊通透公區+舒適雙房

思路解析
1、客廳與陽臺聯通,提升室內采光,同時將晾曬與休閑結合
2、廚房L型布局,將冰箱外置,使操作臺面更充足,烹飪更舒心
3、衛生間做三分離設計,各功能區互不干擾,實用性更強
4、保留兩間臥室,滿足基本休憩需求
效果圖展示


方案二
開闊通透公區+多功能次臥

思路解析
1、客廳與陽臺聯通,提升室內采光,同時將晾曬與休閑結合
2、廚房L型布局,將冰箱外置,使操作臺面更充足,烹飪更舒心
3、衛生間三分離設計,各功能區互不干擾,實用性更強
4、次臥變換床的布置方式,兼顧休憩、收納與學習功能
效果圖展示


————————
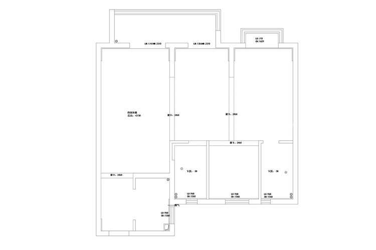
102㎡戶型解析

戶型優點:
1、南北通透,采光甚佳
2、動靜分離,功能區域劃分清晰
3、南向開間約5.2m闊境觀景大陽臺
戶型缺點:
1、收納空間不多
方案
開闊通透公區+舒適三房

思路解析
1、客廳與陽臺聯通,擴大公區面積,同時將晾曬與休閑結合
2、入戶定制玄關柜銜接餐邊柜、電視背景墻、儲物柜,兼顧美觀與實用
3、公共衛生間三分離設計,各功能區互不干擾,實用性更強
4、主臥套房設計,預留獨立衛浴、衣帽間空間,尊享品質生活
5、保留三間臥室,滿足多人口家庭居住需求
效果圖展示



————————
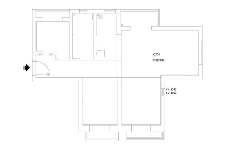
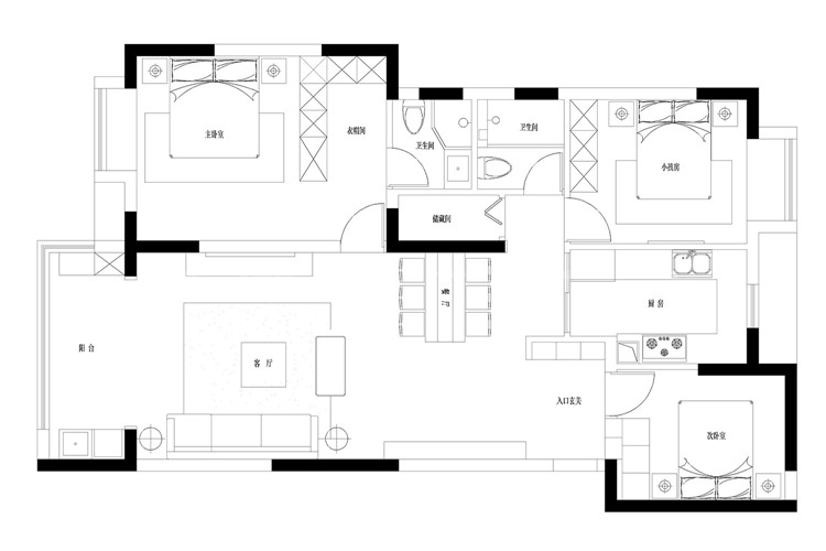
106㎡戶型解析

戶型優點:
1、格局方正,動靜分離
2、約6.3m橫廳,尺度開闊
3、南向雙臥室,采光優越
戶型缺點:
1、衛生間較大,空間有些許浪費
2、廚房空間小,放不下雙開門冰箱
方案
開放式格局,打造開闊互動公區

思路解析
1、衛生間干濕分離,提前預留洗衣機位置,空間利用率更高
2、開放式廚房,打造客餐廚一體,冰箱置于陽臺,以奢闊空間尺度,加強功能實用性
3、南向臥室一間作為主臥,一間作為兒童房,兒童房增設書柜、書桌,兼顧學習功能
4、預留一間多功能房,飄窗拆除定制懸浮書桌,沿著墻體定制兩組儲物柜,增加收納
效果圖展示


————————
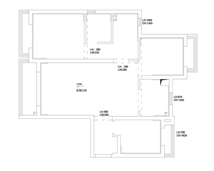
118㎡戶型解析

戶型優點:
1、格局通透,采光極佳
2、戶型功能區域劃分清晰
3、南北臥室動線互不打擾
戶型缺點:
1、餐廚空間相對較小
方案一
舒適三房,滿足多人口家庭

思路解析
1、客廳與陽臺聯通,提升室內采光,同時將晾曬與休閑結合
2、U型廚房設計,連接餐廳、客廳,營造流暢的生活動線
3、餐廳采用抽拉式餐桌,可開可合,增加空間的通透性
4、南向主臥套房,配備獨立衛浴,還能透過寬幕飄窗,欣賞綠意美景
5、保留三間臥室,滿足多人口家庭居住需求
效果圖展示



方案二
去客廳化,解鎖家居生活新模式

思路解析
1、打破傳統客廳設計,打造集就餐、休閑、辦公等功能于一體的復合型公區
2、設計開放式廚房,進一步擴大公區;定制整墻餐邊柜,有效提升整體收納
3、主衛拆除并入主臥,實現空間最大化;增設衣柜+梳妝臺,尊享品質生活
4、公衛三分離設計,將洗手臺外置,各功能區互不干擾,使用更便捷
5、保留兩房,預留一間多功能房,滿足家庭不同階段的生活需求
效果圖展示


————————
124㎡戶型解析

戶型優點:
1、南北通透,生活尺度收放自如
2、開間約4.5m闊景陽臺,寬境客廳采光無限
3、南北臥室動線互不打擾,三臥室均帶飄窗
戶型缺點:
1、廚房空間較小,活動受限
2、主衛面積大,空間有所浪費
3、次臥空間小,收納稍顯不足
方案
舒適三房+超強收納

思路解析
1、陽臺獨立,邊側打造洗衣區,晾曬休閑兩不誤
2、廚房U型布局,冰箱內嵌,科學動線助力高效烹飪
3、餐島一體設計,補充廚房功能,滿足多元生活需求
4、主衛一分為二,部分改造成雜物間,提升整體收納
5、女兒房借用部分書房空間,于床尾增設嵌入式衣柜
效果圖展示


————————
125㎡戶型解析

戶型優點:
1、南北通透,功能區域劃分清晰
2、南向奢闊主臥,闊境觀景大陽臺
3、三個房間完全獨立分開,私密性好
戶型缺點:
1、主衛面積較大,空間有些許浪費
方案一
舒適三房,滿足多人口家庭

思路解析
1、入戶打造玄關落塵區,阻隔灰塵帶入室內
2、陽臺獨立,邊側打造洗衣區,晾曬休閑兩不誤
3、全功能主臥,配備獨立衛浴、獨立衣帽間
4、次臥兼顧收納、學習、休憩功能,滿足多元生活需求
效果圖展示


方案二
舒適三房+超強收納

思路解析
1、入戶打造玄關落塵區,借用次臥空間增設一組鞋柜
2、客廳與陽臺聯通,擴大公區,將晾曬與休閑功能結合
3、全功能主臥,配備獨立衛浴、衣帽間,尊享品質生活
4、縮減衛生間空間,規劃獨立儲物間,提升整體收納
效果圖展示


方案三
舒適兩房+多功能房

思路解析
1、入戶打造玄關落塵區,借用書房空間增設一組鞋柜
2、客廳與陽臺聯通,擴大公區,將晾曬與休閑功能結合
3、全功能主臥,配備獨立衛浴、衣帽間,尊享品質生活
4、縮減衛生間空間,規劃獨立儲物間,提升整體收納
5、預留一間多功能房,兼顧辦公、學習、收納等多種需求
效果圖展示



| 姓名* | |
| 樓盤* | |
| 電話* | |
知精準報價 避裝修深坑
選擇您喜歡的風格
現代輕奢
現代美式
北歐
新中式
歐式
其他
知精準報價 避裝修深坑
選擇房屋面積區間
您的戶型
兩居室
三居室
四居室
五居室
六居室
知精準報價 避裝修深坑
稍等片刻,您的報價正在生中......
知精準報價 避裝修深坑
|
每日僅限前10名用戶