沒有玄關功能的家,相對更臟,更亂,因為缺少了落塵和收納。
想想看,我們從塵土飛揚的戶外回來,身上粘的、腳底踩的,全是各種各樣的粉塵、PM2.5、各種路面細菌。
如果帶進房間,灰塵將滿屋子飄,擦了一層,又來一層,細菌更會威脅家人的健康,尤其是家里有抵抗力弱的小孩、老人,那更要提防。


這一點我們可以像我們的鄰居日本學習。日本人講究:最好的風水就是干凈整潔的居室環境。
在古代日本,就有“土間”,農民耕作回家,剛入戶進土間,農具收好,衣服換好,然后干干凈凈進屋。

現在,日本還保留著獨立的玄關換鞋區,設施齊備,且比居室低一個臺階,更好打理。

以上的思路,雖然我們很難原樣模仿,但是對衛生隱患的高度警覺,是值得學習的。
尤其是小戶型,家里的收納空間本來就少,衛生死角又不便于打理,玄關這個最順手的收納寶地,我們更不能放過了。
接下來介紹下玄關布局的幾種常見形式。
入戶過道太窄,玄關怎么塞?
走道寬度只要大于1200mm,就可以靠墻做柜子。柜子深度在350mm,放鞋子沒問題;如果留出400mm,放鞋盒也夠了。
進門太窄,可以考慮掏墻借面積,或者如果差太多,就直接把墻體挪一下。(注意:是非承重墻)
一進門左邊就是次臥的墻,前方正對臥室門,給人最直觀的感覺就是堵。
設計師將次臥面積向內縮小,勻出了玄關鞋柜和衛生間干區的位置。

如果兩邊都有位置,玄關柜建議放在開門的一層,不容易被門扇遮擋。

進門就是廳,玄關怎么添?
這種情況,玄關就要無中生有了。
隔斷式玄關
玄關收納需求大,入戶空間夠寬敞 → 加通頂高柜;
玄關收納需求小,入戶空間很局限 → 加矮鞋柜。
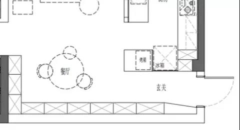
比如這個作品,一個90㎡法式風之家,進門右邊是廚房,設計師在入戶區域做了吧臺柜+餐桌延伸設計,形成了一個非常舒服的入戶動線。
柜體分內外側,靠門這一側自然做為鞋柜使用,內側柜體嵌入了一臺洗碗機。

根據戶型情況沒有做高柜,而是選擇低矮設計,讓空間感受更通透。

屏風式玄關
屏風式玄關很符合中國傳統,隔斷正對門,入戶防止一眼望穿,有隱私遮擋的作用。
屏風隔斷最好依靠旁邊的墻體,才顯得連貫不突兀,如果你家客廳方方正正,最好請設計師綜合調整戶型,不要直接往中間加屏風,否則動線會很不舒服。
下面這個客戶家,就做了屏風式隔斷,借助廚房墻體的走向,順勢做了這面隔斷,看上去很協調。

很好地遮擋了客廳的隱私,同時與門相對的玄關格局,顯得更有入戶的儀式感。
這種格局,鞋柜離門較遠,設計師在門邊還增加了衣鉤和換鞋凳,滿足正常功能。

通透式玄關
柜子直接和門平行,玄關的“儀式感”少了一點,但很適合入戶空間非常有限,進門就是餐廳、廚房等的戶型。
這種玄關不用分隔空間,視線不遮擋,相當通透。
這套90㎡的案例,在進門的右手邊做了一整面墻的鞋柜滿足日常使用。
因為門外還有一個超窄的鞋柜方便換下外出常穿的鞋,室內鞋柜用來存儲其他季節的鞋子,所以不用太擔心距離餐廳近的問題。

一把長條凳兼顧換鞋凳用,超級實用,靈活度也很高,鞋柜選擇黑色也從視覺上做了功能分區。

一個客戶家,50㎡的小戶型,進門沒有玄關,加了這個鞋柜,鞋柜的臺面上還可以用于臨時置物。
可以說是最簡易版的小玄關了吧。


進階版玄關
以下幾種玄關思路,考驗的不僅是面積,還有你的布局規劃水平。
L型轉角玄關
如果你家玄關有5㎡以上,可以嘗試這種方式,收納量大大擴充。
看看這套120㎡案例作品,改造前的戶型,沒有具體的玄關區域,客廳、餐廳和門廳是一體化的大空間。
設計師用一整面墻的玄關柜把室內和室外過渡開,增加實用性,也避免了一眼見廳的尷尬。
面向入戶門的一面,設置了換鞋凳和鞋柜,柜體內大量的儲物空間可以放外套、雨傘等雜物;包包、鑰匙一類的小物件方便隨手放在鞋柜的凹槽處。

鞋柜和換鞋凳L型的連接,各部分功能使用互不影響,在設計上又有整體性。
如果玄關旁邊有2.5㎡以上的面積,你還可以規劃步入式衣帽間,玄關連著衣帽間,要多爽有多爽~

二字型雙向玄關
這種情況適合開放的毛坯房改造,兩側如果都做通頂柜,那么過道要滿足1.6m以上,否則做完柜子真的超級壓抑。
這套90㎡的家,就是雙向玄關設計。

鞋柜由三組宜家貝達的柜子組成,單個寬600mm,藏八露二,與墻之間還留出了一個100mm的縫隙,用來存放雨傘。

玄關另一側,是個小的懸空柜,收納了快遞剪刀、緊急蚊蟲藥等。
小柜子里放了孩子的書包,還貼心地把籃球跟一包濕紙巾放在了一起,方便在室內、室外玩球。
柜子邊的掛鉤有高有矮,矮的是給孩子準備的,讓孩子也養成隨手安放物品的習慣。

復合型玄關柜
如果你家客廳、餐廳區域剛好要打柜子,和玄關形成一條線,完全可以一體化設計,連起來非常好看。
這套81㎡的房子,玄關右側打造的收納柜就直接和客餐區收納柜連成一體,視覺效果相當大氣。


玄關柜中收納了男女主人的登山裝備與折疊嬰兒車。
回家的包包、衣服和其他小物件,可以掛在左側中央的洞洞板上,掛不了的就放在洞洞板旁邊的抽屜柜里。開門、掛包、換鞋,一氣呵成,動線完美。
地面用暖黃色的幾何花磚鋪設出落塵區,不用擔心會踩臟地板。

再看這套65㎡案例,玄關柜與廚房的儲物高柜一起定制。
木色通頂玄關柜狹長收納但足夠用,上面空間收納日常雜物,留中空隨手放一些出門用品,下面常規的鞋柜操作,底部留空15-20cm放置居家拖鞋。

Tips
最后,給你幾個玄關設計的小建議:
● 玄關關鍵元素總結(按重要性排序):鞋柜>掛衣鉤>換鞋凳>全身鏡
● 鞋柜定做、購買前,確定要放的鞋,女士高跟鞋、長筒靴需要特殊考慮層板高度。
● 玄關燈光選擇20w左右的筒燈,一般用一盞就夠了。
●玄關的地面,一般選擇用磚,如果用木地板,最好選強化復合地板,更耐造。
● 室內通鋪地暖時,可以省掉玄關部分,這樣玄關就有了幾厘米的下沉,更方便打理。
● 玄關加隔斷要謹慎,戶型太小加隔斷易顯擁擠,藏露結合的木隔斷、朦朧通透的長虹玻璃等,都是不錯的選擇。

知精準報價 避裝修深坑
選擇您喜歡的風格
現代輕奢
現代美式
北歐
新中式
歐式
其他
知精準報價 避裝修深坑
選擇房屋面積區間
您的戶型
兩居室
三居室
四居室
五居室
六居室
知精準報價 避裝修深坑
稍等片刻,您的報價正在生中......
知精準報價 避裝修深坑
每日僅限前10名用戶